East Harlem Memorial & Low Income Housing

2025 Senior Capstone Project


Our Goal

This project is guided by a commitment to enhance the culture and community of East Harlem through the respectful interpretation and preservation of the history of the East Harlem African Burial Ground. The design prioritizes sensitivity to the site’s historical and cultural significance while supporting thoughtful development that benefits the surrounding community and promotes collective well being.

Empathy and memory are central to the design approach when working within the context of a mass burial site. A substantial portion of the project is dedicated to community gathering spaces and memorial areas that encourage reflection, education, and connection. These spaces ensure that the histories represented on the site are acknowledged and honored, allowing those connected to the community to feel seen and respected.

The project also introduces a carefully integrated mixed use program that includes affordable housing, neighborhood serving businesses, office space, a cultural building, and a monument memorial. These elements are designed to coexist in balance, supporting daily life and economic vitality while preserving the dignity and integrity of the burial ground.

Physical Handmade Model

Materials Used

Balsa wood, foam board, cork board, hot glue, masking tape

Digital Mockups

Revit & AutoCAD

North Elevation

South Elevation

Community Center Sections

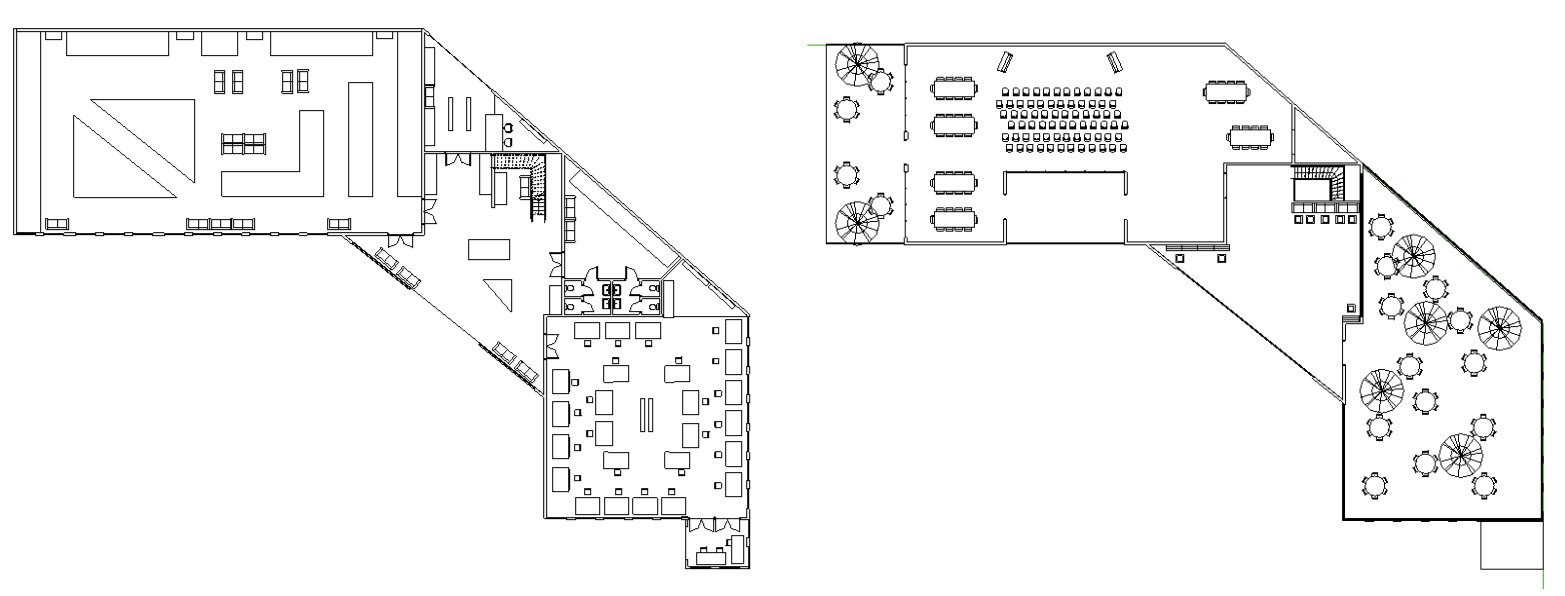
Community Center Floor Plans

Residential & Business Sections

East Elevation

West Elevation

Commercial Floor Plans (L1)

Office Floor Plans (L2-L5)

Residential Floor Plans (L6-L20)

3D Renderings

Revit

Previous
Previous

The Rune - 2025 Skyscraper Design Competition

Next
Next

Bungalow Forest House Design - 2024